W tym artykule przeczytasz między innymi o:
- nowym planie zagospodarowania przestrzennego
- przyjęciu planu
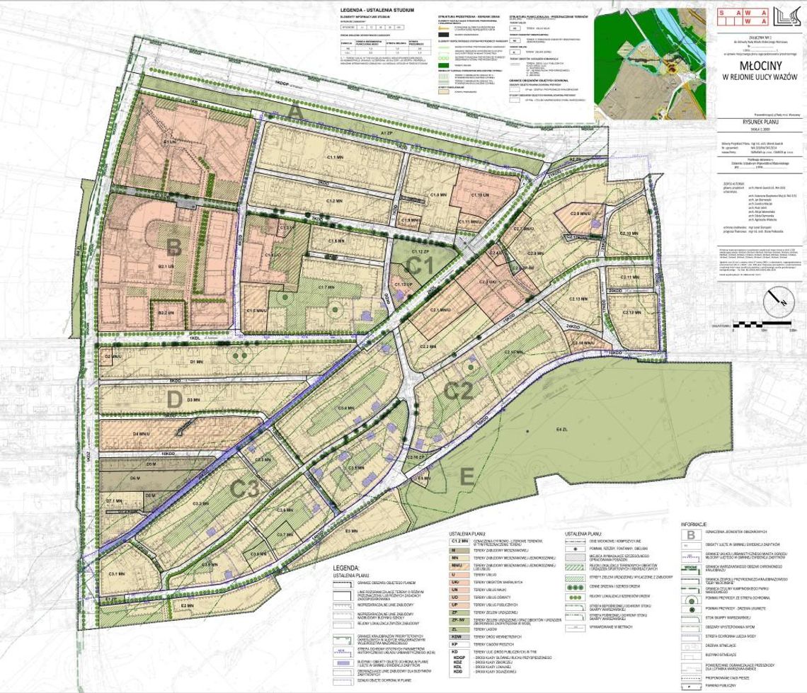
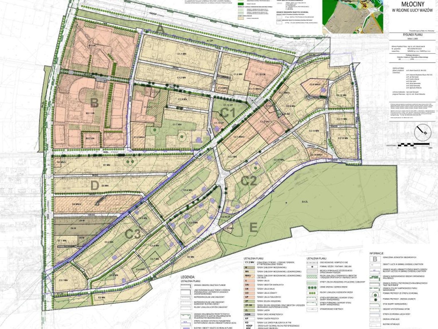
Młociny zyskały nowy plan zagospodarowania przestrzennego
Decyzją Rady m.st. Warszawy uchwalono dokument obejmujący obszar o powierzchni 80 hektarów, położony w rejonie ul. Wazów. Teren ten charakteryzuje się niską, jednorodzinną zabudową, licznymi pasami zieleni, lasami (w tym cennym kompleksem „Dębów Młocińskich”) oraz obecnością obiektów Uniwersytetu Kardynała Stefana Wyszyńskiego.
Nowy plan ma na celu uporządkowanie przestrzeni i zapewnienie spójnego rozwoju tej części Bielan. Co istotne, dokument zakłada skuteczniejszą ochronę naturalnego krajobrazu, w tym wartościowych terenów leśnych, które stanowią nie tylko o ekologicznym znaczeniu Młocin, ale i o ich unikalnym charakterze w skali całej Warszawy.
– To bardzo potrzebna decyzja. Młociny to jedno z tych miejsc w stolicy, gdzie przyroda współistnieje z zabudową mieszkaniową. Dzięki planowi uda się lepiej chronić ten balans – komentuje Renata Kaznowska, zastępczyni prezydenta Warszawy.
Przyjęcie planu to także zabezpieczenie przed niekontrolowaną zabudową, która mogłaby zaburzyć kameralny charakter osiedla oraz stanowić zagrożenie dla przyrodniczych zasobów dzielnicy. Dokument stanowi efekt wielomiesięcznych prac planistycznych i konsultacji społecznych.
Nowy plan dla Młocin to kolejny krok w kierunku zrównoważonego rozwoju Warszawy – takiego, który uwzględnia potrzeby mieszkańców, ale i dba o dziedzictwo przyrodnicze miasta.












Napisz komentarz
Komentarze